Apartmani Pakoštane

U ponudi nudimo 12 vrhunskih, moderno dizajniranih i etažiranih apartmana smještenih na atraktivnoj lokaciji u Pakoštanima. Idealni za život, odmor ili sigurnu investiciju u nekretninu na moru.

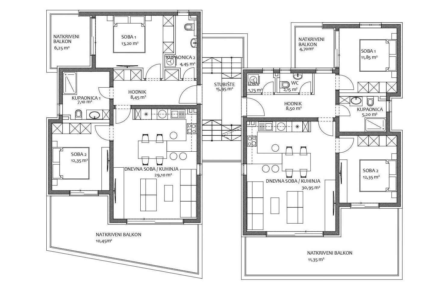
Svaki apartman raspoređen je funkcionalno i prostrano te sadrži dvije udobne spavaće sobe, dvije moderno opremljene kupaonice, otvoreni koncept kuhinje, blagovaonice i dnevnog boravka, kao i izlaz na veliku terasu savršenu za uživanje na otvorenom. Dodatnu vrijednost pruža i manji balkon koji osigurava dodatni prostor i privatnost.

Stambena površina apartmana iznosi između 75 i 80 četvornih metara, uz dodatnih 12 četvornih metara terase za ugodan boravak na otvorenom.

Uz svaki apartman dolaze i dva privatna parkirna mjesta, što jamči praktičnost i sigurnost tijekom cijele godine.

Moderan arhitektonski stil, kvalitetni materijali i pažljivo osmišljen raspored prostora jamče visoku razinu komfora i dugoročnu vrijednost nekretnine.

Smješteni u blizini mora i svih važnih sadržaja.


Kvaliteta gradnje i odabir materijala predstavljaju jednu od glavnih vrijednosti ovog projekta, pri čemu je naglasak stavljen na dugotrajnost, funkcionalnost i moderan estetski dojam. U izgradnji se koriste provjereni, visokokvalitetni materijali koji zadovoljavaju visoke standarde suvremenog stanovanja.

Ugrađuje se aluminijska stolarija s komarnicima, koja osigurava izvrsnu toplinsku i zvučnu izolaciju, otpornost na vanjske utjecaje te dug vijek trajanja uz minimalno održavanje. Grijanje i hlađenje prostora riješeno je putem dizalica topline, što osigurava visoku energetsku učinkovitost, stabilnu unutarnju temperaturu i niže troškove potrošnje.

Sanitarna oprema uključuje ugradbene vodokotliće vrhunskih, renomiranih proizvođača. U sanitarnim čvorovima predviđeno je podno grijanje, koje osigurava ravnomjernu toplinu i dodatni osjećaj ugode.

Podovi i zidovi oblažu se keramičkim pločicama velikog formata, prve klase, koje prostoru daju suvremen, elegantan izgled čime se postiže čišći i uredniji vizualni dojam. Posebna pažnja posvećena je načinu ugradnje keramike.

Keramika se postavlja u izvedbi koja omogućava da se rubovi pločica precizno režu pod kutom kako bi se na spojevima dobio savršeno ravan i čist kut, bez plastičnih ili metalnih završetaka, čime prostor izgleda kvalitetnije, urednije i luksuznije.

U fazi izgradnje kupcu je omogućeno sudjelovanje u odabiru keramike i dodatnih opcija, čime se prostor može dodatno prilagoditi osobnim željama i stilu budućeg vlasnika.